Podobne oferty
ESC-LW-225 -- || --Białystok, Centrum
lokal na wynajem
Liczba pokoi
5
5
m2
200,00
200,00
zł/m2
30,00
30,00
6 000 zł
Opis nieruchomości
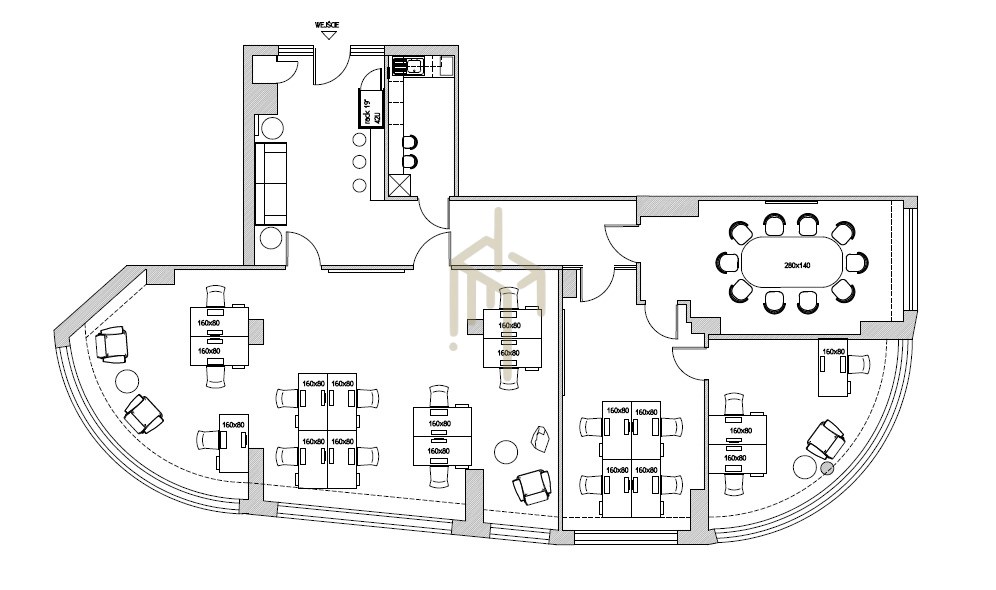
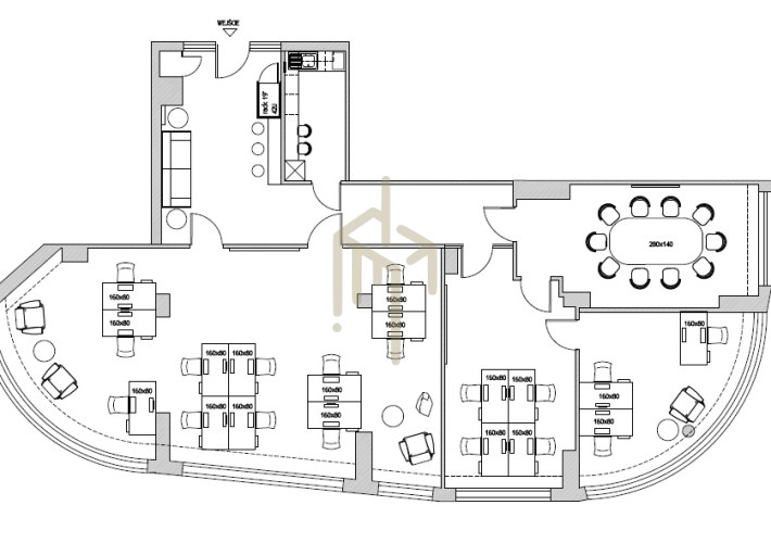
Lokal biurowy w "Błękitnym Wieżowcu".
Moduł biurowy o powierzchni 200 m2 usytuowany w prestiżowej, przeszklonej części biurowca przy ul. Legionowej 28. W standardzie budynku jest wentylacja mechaniczna oraz centralna klimatyzacja (agregat wody lodowej).
Powierzchnia lokalu to: część recepcyjna / poczekalnia, korytarz, 4 pomieszczenia biurowe oraz pokój socjalny (kuchnia).
Opłaty:
Miesięczne opłaty wynoszą 6.000 zł netto plus opłata administracyjna (2.500 zł - 3300 zł), w tym: administrowanie, ogrzewanie, utrzymanie części wspólnych budynku, wywóz odpadów.
Dodatkowo należy ponosić koszty energii elektrycznej według zużycia.
Dostępność: natychmiast
Zapraszamy.
Moduł biurowy o powierzchni 200 m2 usytuowany w prestiżowej, przeszklonej części biurowca przy ul. Legionowej 28. W standardzie budynku jest wentylacja mechaniczna oraz centralna klimatyzacja (agregat wody lodowej).
Powierzchnia lokalu to: część recepcyjna / poczekalnia, korytarz, 4 pomieszczenia biurowe oraz pokój socjalny (kuchnia).
Opłaty:
Miesięczne opłaty wynoszą 6.000 zł netto plus opłata administracyjna (2.500 zł - 3300 zł), w tym: administrowanie, ogrzewanie, utrzymanie części wspólnych budynku, wywóz odpadów.
Dodatkowo należy ponosić koszty energii elektrycznej według zużycia.
Dostępność: natychmiast
Zapraszamy.
Nota prawna
Opis oferty zawarty na stronie internetowej sporządzany jest na podstawie oględzin nieruchomości oraz informacji uzyskanych od właściciela, może podlegać aktualizacji i nie stanowi oferty określonej w art. 66 i następnych K.C.
Podstawowe
Symbol oferty
ESC-LW-907
Powierzchnia
200,00 m²
Liczba pokoi
5
Piętro
6
Szczegóły
Rodzaj budynku
biurowiec
Standard





Opłaty w czynszu
administracja, CO, Części wspólne, fundusz remontowy, ochrona, Winda, wywóz śmieci
Opłaty wg liczników
prąd
Liczba pięter w budynku
9
Stan lokalu
bardzo dobry
Typ kaucji
dwumiesięczna
Mies. czynsz admin.
2 500 PLN
Rok budowy
2004
Rodzaj lokalu
jednopoziomowy
Przeznaczenie lokalu
biurowy
Czynsz najmu netto /m2
30 PLN
Winda
tak
Liczba wind
3
Usytuowanie
narożne
Przystosowania dla niepełnosprawnych
tak
Możliwość parkowania
płatne
Wejście
w oficynie
Ekspert do spraw nieruchomości
Kontakt z agentem